Home
Works and Projects
Services
Publications
Curriculum
Collaborators
Contact
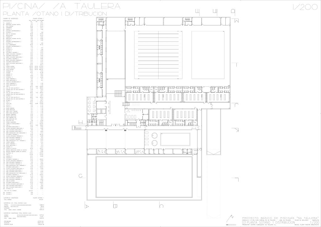
Underwater Activities Centre
2004. Sa Taulera. Palma de Mallorca
Restricted competition. 1st Prize